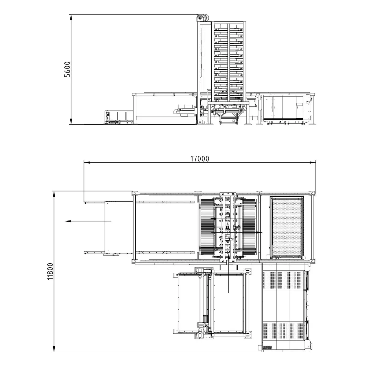
Автоматизированная система хранения листового металла — это ключевой элемент для организации бесперебойного и высокоэффективного производства в цехах лазерной резки. Она представляет собой роботизированный складской комплекс, предназначенный для компактного и упорядоченного хранения заготовок различного размера и толщины, их автоматической подачи на станок и возврата остатков. Данное решение превращает разрозненные паллеты с материалом в единый, полностью управляемый цифровой склад.
Внедрение такой системы кардинально меняет логистику цеха, устраняя ручной труд при поиске и перемещении тяжелых листов. Оператор через ЧПУ станка или отдельный интерфейс просто выбирает программу резки, а система самостоятельно идентифицирует, извлекает и подает на станок нужный лист из стеллажа. Это минимизирует риск повреждения материала, повреждения станка из-за ошибок загрузки и производственного травматизма.
Таким образом, инвестиция в автоматический склад — это не просто покупка оборудования, а стратегическое решение для перехода на круглосуточное «светлое» производство. Она обеспечивает максимальную загрузку лазерного станка, точный контроль остатков материала, высвобождает ценную производственную площадь и позволяет управлять всем материальным потоком силами одного оператора. В итоге вы получаете предсказуемость, скорость и значительное снижение себестоимости каждой детали.
Условия и способы оплаты
Оплата товара осуществляется только безналичным переводом денег согласно выставленному счету.
Мы с пониманием относимся, что купить дорогостоящее оборудование не всегда сразу возможно. Мы предлагаем нашим клиентам воспользоваться финансовым инструментом - Лизинг. Нашими партнерами по лизинговым компаниям являются “Дельта Лизинг”, “Балтийский лизинг” и другие, которые специализируются на оборудовании для металлообработки.
Мы предлагаем различные условия оплаты по согласованию сторон. Ниже указаны наши стандартные условия оплат, если оборудование поставляется под заказ.
50% - предоплата;
40% -по факту готовности к отгрузке со склада в г. Москве;
10% - после ввода оборудования в эксплуатацию..
Счета выставляются в рублях, Китайских Юанях, Долларах США или в Евро. Оплата счетов в Китайских Юанях, Долларах США или в Евро производится по курсу Евро ЦБ РФ.
Доставка
Доставка оборудования производится по всей территории России и стран СНГ. Обычно мы пользуемся услугами транспортной компанией “Деловые линии”, но вы можете подобрать транспортную компанию на свой выбор.
Самовывоз оборудования осуществляется по адресу Москва, Южнопортовая ул, 28 При получении товара необходимо иметь при себе доверенность или печать компании.
Время работы склада:
Пн-Пт: с 09:00 до 18:00;
Cб, Вс: выходные дни.
